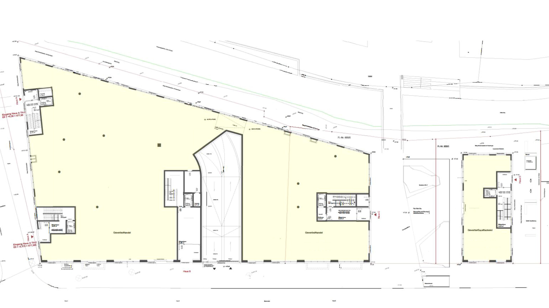
In unmittelbarer Nähe zum Ulmer Hauptbahnhof entstehen im neu errichteten Quartier DICHTER4 moderne und flexibel nutzbare Gewerbeflächen mit hoher Sichtbarkeit und Frequenz. Die im Erdgeschoss gelegenen Flächen überzeugen durch großzügige Fensterfronten, eine zeitgemäße Architektur und vielfältige Ausbaumöglichkeiten, die sich individuell an die Anforderungen des zukünftigen Nutzers anpassen lassen.
Das lebendige Umfeld, geprägt durch neues Wohnen, Arbeiten und urbane Aufenthaltsqualität, sorgt für ein attraktives Kundenpotenzial. Dank der hervorragenden Anbindung an den öffentlichen Nahverkehr sowie an die B28 ist der Standort optimal erreichbar und bietet beste Voraussetzungen für eine nachhaltige gewerbliche Nutzung.







